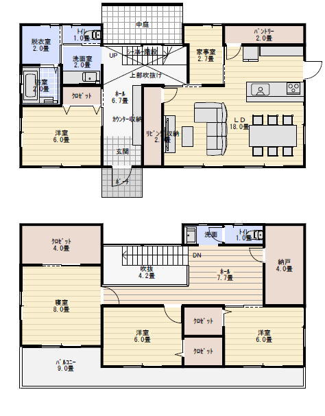
今回のプランは45坪4 LDK の廊下を明るく開放的にした間取りです。
廊下に焦点を当てている感じになるのですけれども
普段、廊下というのはあまり力を入れない場所になります。
そこを明るく開放的もしくは天井高くしたりとか
工夫することによって毎日通る場所を快適にしていこうと
そういった提案のある間取りになります。
玄関ホールを入ると非常に長い2.7 M ぐらいのカウンター式の収納があります。
これは奥行きを長く見せるといった効果があります。
そしてホールの奥の方には廊下があってリビングに入っていきます。
廊下の部分は玄関から入って突き当たりの所に大きな窓があります。
そしてその奥に中庭が広がっています。
北側で少しほの暗いかもしれませんが
は明かりを反射して入ってくるという形になります。
階段はシースルーで光を阻害しない形状になっているので
上からも光が入る形になります。
廊下の階段の上のところは吹き抜けになってまして
上の方からも光がふり注ぐといった工夫と開放感があるという形になります。
ですので毎日ここにリビングを通って行く時に
非常に開放的な場所になります。
リビングダイニングキッチンの方は18畳で対面式キッチンになります。
キッチンの背面の収納とパントリー収納が2畳あります。
そしてキッチンの横には家事室があります。
家事室の方には窓が付いていて、こちらは北に向いてます。
中庭側に向けてもいいと思います。
ダイニングとリビングは南の方に掃き出し窓がついていて
庭に出ることができます。
ダイニングをとリビング越しに庭を見ながら
キッチンで作業することが可能です。
リビングのテレビの背面にリビング収納があるので
部屋を片付けることができていつもLDKをきれいに保つことができます。
洗面と脱衣室の方は別れて収納と洗濯機を置くスペースがあります。
トイレから出てすぐ洗面室を使うことができるので
使い勝手もいいという感じになります。
1階の洋室6畳、こちらは応接間でも趣味の部屋でもいいと思います。
階段を上って2階に上がっていくとホールがあります。
ここはセカンドリビング的に使ってもいいです。
テーブル置いてもいいですね。
特に使い方は決まっていないけれども
何かに使えるホールにしてあるという感じです。
2階にも洗面とトイレがあります。
南の方に子供部屋の想定の各部屋にはウォークインクローゼットが付いています。
寝室は8畳で4畳のウォークインクローゼットがあります。
寝室の前のバルコニーテラスは広い状態になっていて
子供部屋の洋室の前は少し狭い感じになってます。
南に大きく窓が開放されているので明るく風通しの良いプランになってます。
そして納戸も4畳取れているので収納も確保されています。
奥に長い玄関ホールと天井の高い廊下を通ってリビングに入っていきますので
毎日毎日、気分的に解放されたような気分になります。
閉鎖的な廊下を通りよりもだいぶ違うわけです。
一年365日が何年も続いていくわけですから
同じ4 LDK のは間取りでもだいぶ気分がちがいってことになります。
今回は廊下を明るく開放的にする間取りの紹介でした。
